Switchgear compacto selado totalmente isolado da unidade principal do anel bonde SF6 da tensão média
Caixas combinadoras solares fotovoltaicas 500V-1500V 20A-630A
Gabinete de distribuição de rede fotovoltaica trifásico de 100-2000kW
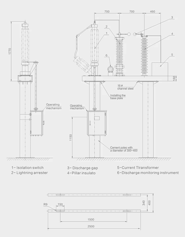
Subestação de caixa inteligente/compacta de 24KV (20KV)O dispositivo de proteção de aterramento do ponto neutro da chave seccionadora GW13 produzido pela Lugao é projetado para proteger o isolamento do ponto neutro do transformador contra sobretensão de raios, sobretensão de comutação e sobretensão de frequência de energia (transitória). Lugao possui equipamentos de produção profissionais e rica experiência em exportação, e o estoque mantido pode ser entregue rapidamente.
Os dispositivos de proteção de aterramento de ponto neutro da chave seccionadora GW13 da Lugao são usados principalmente nos circuitos de ponto neutro de transformadores de potência de 110kV e 220kV. Eles protegem o isolamento do ponto neutro do transformador contra danos por sobretensão e permitem que o transformador alterne entre os modos de operação do ponto neutro aterrado e não aterrado. Quando for necessária proteção simultânea contra raios, frequência de alimentação e sobretensões de comutação, um gap e um pára-raios podem ser conectados em paralelo para proteção. O protetor de sobretensão de ponto neutro da série GW13 é um conjunto completo que integra seccionador, pára-raios de óxido de zinco, intervalo de descarga e transformador de corrente. Possui alta capacidade térmica e excelente proteção, configurações flexíveis e facilidade de uso. Um projeto de folga pura ou uma combinação de seccionador e folga de descarga pode ser selecionado para atender às necessidades do usuário.
Especificações técnicas do dispositivo de proteção GW13
| item |
Unidade |
Argumento |
||
| Modelo do produto |
|
Lugão-GW13-110 |
Lugão-GW13-220 |
|
| Tensão nominal |
KV |
110 | 220 | |
| Tensão suportável do neutro do transformador |
Relâmpago cheio e corte de tensão suportável (pico) |
KV |
250 | 400 |
| Frequência de energia de 1min (valor efetivo) |
KV |
95 | 200 | |
| Interruptor de isolamento neutro |
Corrente nominal |
A | 630 | 630 |
| Mecanismo operacional |
|
CS14G(manual) ou CJ2(elétrico) |
||
| Supressor de óxido de zinco |
Tensão nominal (RMS) |
KV |
72 | 144 |
| Tensão operacional contínua |
KV |
58 | 116 | |
| Tensão de referência CC 1mA |
KV |
103 | 205 | |
| Tensão residual da corrente de impulso do raio |
KV |
186 | 320 | |
| Lacuna de descarga |
Faixa de distância do eletrodo de folga |
milímetros | 90-150 | 220-320 |
| Faixa de tensão de descarga de frequência de energia |
KV |
50-83 | 100-166 | |
| Tensão de descarga de impulso 1.2/50us |
KV |
120-190 | 250-320 | |
| Transformador de corrente |
Tipo |
|
Resina epóxi derramada tipo pilar totalmente fechado 10kv |
|
| Razão de transformação |
|
100/5.200/5.300/5.40015.50015.600/5 |
||

Interruptor de desconexão externo 12KV
Interruptor de desconexão de alta tensão externa 132KV
Interruptor de isolamento de alta tensão externo Gw4
Interruptor de isolamento de alta tensão externo Gw1-12
Interruptor de isolamento de alta tensão externo Gw1-24
Interruptor de isolamento de alta tensão externo Gw5