Switchgear compacto selado totalmente isolado da unidade principal do anel bonde SF6 da tensão média
Caixas combinadoras solares fotovoltaicas 500V-1500V 20A-630A
Gabinete de distribuição de rede fotovoltaica trifásico de 100-2000kW
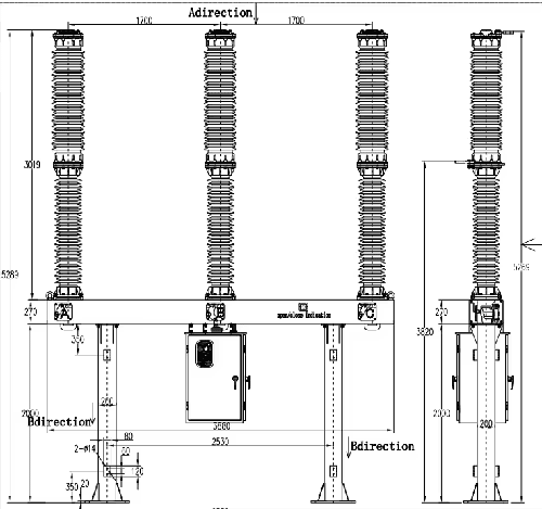
Subestação de caixa inteligente/compacta de 24KV (20KV)Lugao Power Co., Ltd. possui uma oficina especializada dedicada à produção de disjuntor a gás tripolar de alta tensão 220kv 330kv sf6. Sua tecnologia de design é líder do setor. Os disjuntores SF6 da série LW utilizam uma câmara de extinção de arco de pressão única e tecnologia de extinção de arco autoenergizado, usando gás hexafluoreto de enxofre como meio isolante e extintor de arco. Uma câmara separada de extinção de arco gera fluxo de ar durante o processo de abertura, resfriando o arco e interrompendo a corrente.
Os disjuntores a gás tripolar de alta tensão 220kv 330kv sf6 são equipamentos externos de transmissão e transformação de energia de alta tensão tripolar/monopolar AC 50Hz/60Hz usados para abrir ou desligar corrente nominal, corrente de falha ou linhas de comutação, protegendo, controlando e operando sistemas de transmissão e distribuição de energia. Eles podem realizar operações de abertura, fechamento e religamento automático rápido. As tensões nominais variam de 45kV a 330kV, e o sistema central consiste em uma bucha de porcelana de suporte, unidade de extinção de arco, mecanismo de operação hidráulico/mola e controlador de densidade inteligente. A câmara independente de extinção de arco gera fluxo de ar comprimido durante o processo de abertura para resfriar eficientemente o arco e interromper a corrente. Um design de circulação de gás totalmente fechado garante uma operação confiável em vários ambientes. Eles apresentam estrutura simples, manutenção fácil e rápida, baixo consumo de energia, baixos requisitos de energia operacional, alta confiabilidade, fácil instalação e baixo ruído.

| Tipo |
Exterior, bucha de porcelana |
| Freqüência |
50Hz/60Hz |
| Tensão operacional do sistema |
132kV |
| Tensão nominal |
145kV/220kV/330kV |
| Sequência operacional |
O-0,3s-CO-3min-CO |
| Nº de bobinas de disparo |
2 |
| Não de bobinas de fechamento |
1 |
| Nº de contatos auxiliares: |
10NO,10NC |
| Meio de têmpera |
SF6 |
| Número de pausas por fase |
1 |
| Tempo gasto pelo motor para carregar a forma de mola totalmente descarregada até a posição totalmente carregada |
<30Sc |
| Tipo de mecanismo operacional |
Carregamento de primavera |
| Tensão suportável de frequência de energia nominal (em altitude inferior a 1.000 m) |
325 kV |
|
Impulso relâmpago avaliado suportar tensão (em altitude inferior a 1000m) |
750 kV |
| Mecanismo Operacional |
Pólo único, três pólos |
| Distância da idade de fluência |
31 mm/kV |
| Corrente de interrupção nominal |
31,5kA/3seg |
| Corrente normal nominal |
3150A |
| Corrente nominal de curto-circuito |
Pico de 80kA |



220KV SF6 Pesados Disjuntor de alta tensão
40,5kV de alta tensão de alta tensão SF6 Disjuntor de gás
Disjuntor de alta tensão de alta tensão de 126kv
Interruptor de alta tensão trifásico do vácuo de 35KV 40.5KV com transformador
Tipo exterior interruptor da subestação de ZW7 33kv 40.5kv a vácuo de alta tensão